The Snowdrop

Home 226

Little Cotton Farm
Dartmouth, TQ6 0FL

£499,995

We're next open:

Today from 10:00 to 17:00

Full opening times

Monday: 10:00 - 17:00

Tuesday: 10:00 - 17:00

Wednesday: 10:00 - 17:00

Thursday: 10:00 - 17:00

Friday: 10:00 - 17:00

Saturday: 10:00 - 17:00

Sunday: 10:00 - 17:00

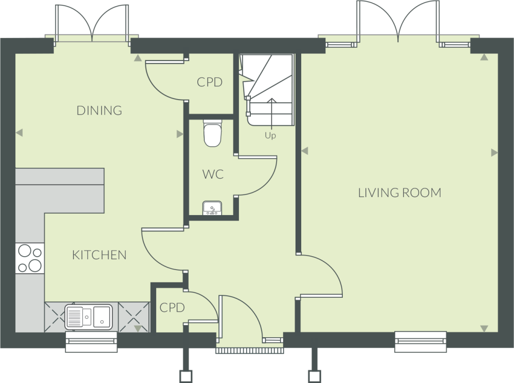
Floorplan

The Snowdrop Ground Floor LCF
The Snowdrop First Floor LCF

Kitchen/Dining

 5.6m x 3.3m 

18'6" x 11'1"

Living Room

5.6m x 3.9m

18'6" x 12'11"

Principal Bedroom

 4.1m x 3.3m

13'6" x 11'1"

Bedroom 2

 3.4m x 2.8m

11'3" x 9'3"

Bedroom 3

 3.2m x 2.5m 

10'9" x 8'4"

Key: B - Boiler CPD - Cupboard

Computer generated image is not to scale. Finishes and materials may vary from those shown. Landscaping is illustrative only. The floor plan and dimensions shown are the smallest of this house type. Different styles of this house type may have a varied layout or larger dimensions. Please note floor plans and dimensions are taken from architectural drawings and are for guidance only. Kitchen layouts are for illustrative purposes only, please ask to see separate kitchen layouts.

The Snowdrop | Home 226

The Snowdrop is a beautifully designed three-bedroom detached home, complete with a single garage and one additional parking space.

The ground floor offers a thoughtfully arranged layout, featuring an open-plan kitchen and dining area ideal for everyday living and entertaining, alongside a separate spacious living room providing a relaxing retreat.

Upstairs, the principal bedroom benefits from a private en-suite, while two further bedrooms are served by a modern family bathroom


EPC rating: B

Get in touch

Janine Dixon

Janine can help you at Little Cotton Farm

01803302515

We're next open: Today from 10:00 to 17:00

Full opening times

Monday: 10:00 - 17:00

Tuesday: 10:00 - 17:00

Wednesday: 10:00 - 17:00

Thursday: 10:00 - 17:00

Friday: 10:00 - 17:00

Saturday: 10:00 - 17:00

Sunday: 10:00 - 17:00

Site plan

Interactive Site Plan

Zoomer Plus
Zoomer Plus

Filter by plot status

Filter by house type

Helping you move

Assisted Move

Assisted Move will make your next move. easier and less stressful by letting us do the hard work tor you.

Find out more

Home Exchange

We will buy your home so you can reserve a Baker Estates home, eliminating the worry that your chain may fall through.

Find out more

Armed Forces Package

Baker Estates is pleased to offer members of HM Forces a tailor-made package which can help towards the purchase a new home.

Find out more

Our Calculators

Calculations based on 30 year mortgage term

*Calculations based on 30 year mortgage term

Stamp Duty Calculator

Get in touch

Janine Dixon

Janine can help you at Little Cotton Farm

01803302515

We're next open:
Today from 10:00 to 17:00

Full opening times

Monday: 10:00 - 17:00

Tuesday: 10:00 - 17:00

Wednesday: 10:00 - 17:00

Thursday: 10:00 - 17:00

Friday: 10:00 - 17:00

Saturday: 10:00 - 17:00

Sunday: 10:00 - 17:00

More homes at this development

LCF The Tulip

The Tulip

Plot 141

£399,995

Bedrooms Icon

3 Bedrooms

Bathroom Icon

0 Bathrooms

LCF The Clover

The Clover

Plot 229

£399,995

Bedrooms Icon

3 Bedrooms

Bathroom Icon

2 Bathrooms

LCF Snowdrop

The Snowdrop

Plot 227

£499,995

Bedrooms Icon

3 Bedrooms

Bathroom Icon

2 Bathrooms